00 Borregas , Elmendorf, TX 78112
Property Photos
Would you like to sell your home before you purchase this one?
Priced at Only: $285,139
For more Information Call:
Address: 00 Borregas , Elmendorf, TX 78112
Property Location and Similar Properties
- MLS#: 1913479 ( Single Residential )
- Street Address: 00 Borregas
- Viewed: 22
- Price: $285,139
- Price sqft: $157
- Waterfront: No
- Year Built: 2025
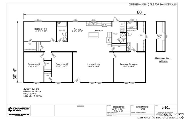
- Bldg sqft: 1820
- Bedrooms: 4
- Total Baths: 2
- Full Baths: 2
- Garage / Parking Spaces: 1
- Days On Market: 65
- Additional Information
- County: BEXAR
- City: Elmendorf
- Zipcode: 78112
- Subdivision: Elmendorf Area Ec
- District: East Central I.S.D
- Elementary School: Harmony
- Middle School: Heritage
- High School: East Central
- Provided by: eXp Realty
- Contact: Christopher Drawdy
- (210) 214-2673

- DMCA Notice
-
DescriptionBuild to Suit! Brand New Modular Home on 10.034 Acres Under $290K! Take advantage of this rare opportunity to own a new construction modular home in a spacious surrounding. The home can be built on a concrete foundation to qualifies for FHA, VA, and Conventional financing. Enjoy the peace of mind that comes with all new utilities, systems, and upgrades, aired with the freedom of living on a generously sized property over 10 Acres! Custom finishes available! Buyers still have the chance to select interior finishes and personalize the home to their taste. **This listing price is land and home only. BUYER HAS THE OPTION TO INSTALL AND CONNECT UTIILITIES OR ADD THAT TO THE TOTAL SALES PRICE. Home renderings and photos are for inspirational purposes only and are from similar nearby project. Final home placement, orientation, and features may vary.
Payment Calculator
- Principal & Interest -
- Property Tax $
- Home Insurance $
- HOA Fees $
- Monthly -
Features
Building and Construction
- Builder Name: GIILD
- Construction: New
- Exterior Features: Siding
- Floor: Vinyl
- Foundation: Slab, Other
- Kitchen Length: 14
- Other Structures: None
- Roof: Composition
- Source Sqft: Appsl Dist
Land Information
- Lot Description: County VIew, Horses Allowed, 5 - 14 Acres, Ag Exempt, Hunting Permitted, Partially Wooded, Level
- Lot Dimensions: 982 x 433
- Lot Improvements: Street Paved, Dirt, Easement Road, Private Road
School Information
- Elementary School: Harmony
- High School: East Central
- Middle School: Heritage
- School District: East Central I.S.D
Garage and Parking
- Garage Parking: None/Not Applicable
Eco-Communities
- Water/Sewer: City
Utilities
- Air Conditioning: One Central
- Fireplace: Not Applicable
- Heating Fuel: Electric
- Heating: Central
- Utility Supplier Elec: CPS
- Utility Supplier Gas: CPS
- Utility Supplier Grbge: ELMENDORF
- Utility Supplier Sewer: ELMENDORF
- Utility Supplier Water: ELMENDORF
- Window Coverings: All Remain
Amenities
- Neighborhood Amenities: Other - See Remarks
Finance and Tax Information
- Days On Market: 20
- Home Faces: North
- Home Owners Association Mandatory: None
- Total Tax: 5641.46
Rental Information
- Currently Being Leased: No
Other Features
- Accessibility: 2+ Access Exits, Doors-Swing-In, No Carpet, Ramped Entrance, Level Lot, Level Drive, No Stairs, First Floor Bath, Full Bath/Bed on 1st Flr, First Floor Bedroom, Disabled Parking, Ramp - Main Level, Wheelchair Ramp(s)
- Contract: Exclusive Right To Sell
- Instdir: Access from Old Corpus Christi Rd. Drive down the gravel road entrance and property line begins at end of the fence that surrounds the last mobile home to your right. Access location Plus Code: 7M54+G5R Elmendorf, Texas
- Interior Features: One Living Area, Separate Dining Room, Island Kitchen, Walk-In Pantry, Utility Room Inside, Cable TV Available, High Speed Internet, All Bedrooms Downstairs, Laundry in Closet, Laundry Main Level, Laundry Room, Telephone, Walk in Closets
- Legal Desc Lot: 227
- Legal Description: Cb 4008-1 P-22E Abs 4 Arb Tr-3
- Occupancy: Vacant
- Ph To Show: 2102222227
- Possession: Closing/Funding
- Style: One Story, Manufactured Home - Double Wide
- Views: 22
Owner Information
- Owner Lrealreb: No
Similar Properties
Nearby Subdivisions
- Millie Wang
- Premier Realty Group
- Mobile: 210.289.7921
- Office: 210.641.1400
- mcwang999@gmail.com



























